Rif: negozio alba
ROMA
ROMA - zona Tuscolano
QUESTO NEGOZIO E' STATO AFFITTATO!
SE DESIDERI ESSERE AFFIANCATO ANCHE TU DALLA NOSTRA AGENZIA PER REALIZZARE CON SUCCESSO I TUOI PROGETTI IMMOBILIARI, CONTATTACI!
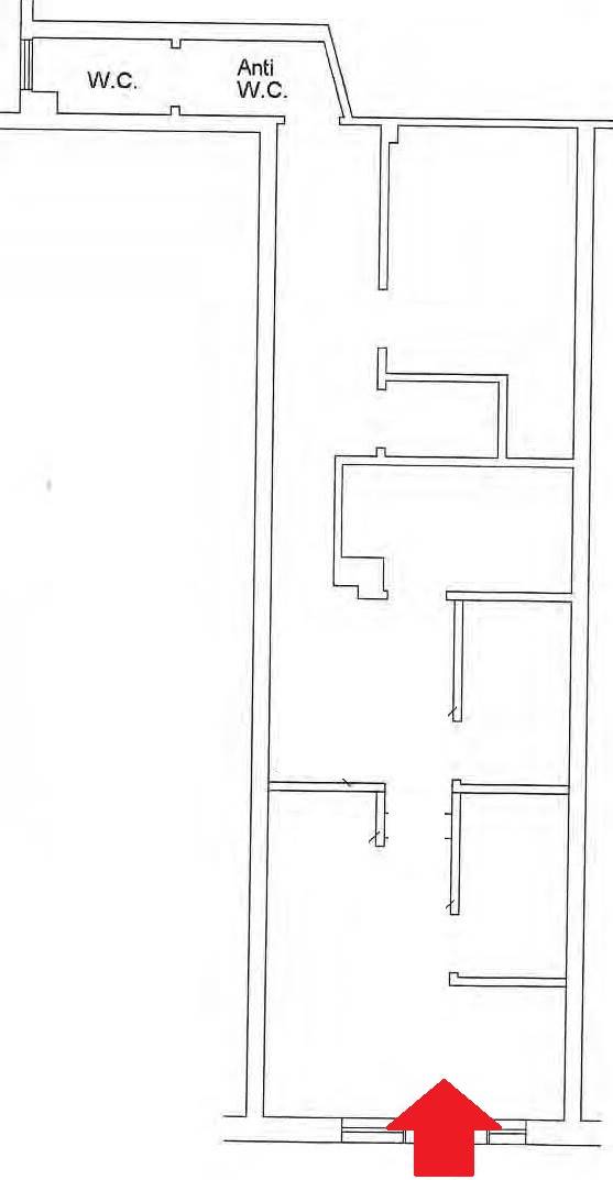
NEGOZIO CA. MQ 45
In zona San Giovanni, e precisamente nella parte finale di via Alba con un buona visibilità da via Tuscolana, proponiamo in locazione un locale commerciale di circa 45 mq attualmente adibito a centro estetico.
Il canone richiesto è di 880 euro mensili con contratto di anni 6 + 6
Si richiedono adeguati redditi dimostrabili.
Vista l'attuale arredamento e disposizione del locale, la locazione è rivolta principalmente ad attività del settore estetico.
PER INFORMAZIONI E VISITE CONTATTARE IL 339 7887610 O MANDARE UN MESSAGGIO TRAMITE WHATSAPP
SE DESIDERI ESSERE AFFIANCATO ANCHE TU DALLA NOSTRA AGENZIA PER REALIZZARE CON SUCCESSO I TUOI PROGETTI IMMOBILIARI, CONTATTACI!
NEGOZIO CA. MQ 45
In zona San Giovanni, e precisamente nella parte finale di via Alba con un buona visibilità da via Tuscolana, proponiamo in locazione un locale commerciale di circa 45 mq attualmente adibito a centro estetico.
Il canone richiesto è di 880 euro mensili con contratto di anni 6 + 6
Si richiedono adeguati redditi dimostrabili.
Vista l'attuale arredamento e disposizione del locale, la locazione è rivolta principalmente ad attività del settore estetico.
PER INFORMAZIONI E VISITE CONTATTARE IL 339 7887610 O MANDARE UN MESSAGGIO TRAMITE WHATSAPP










